프로젝트 대표 이미지프로젝트 대표 이미지

박봉담 Parkbongdam

새로운 프로젝트
프로젝트 대표 이미지프로젝트 대표 이미지

박봉담 Parkbongdam

새로운 프로젝트
  • 위치

    경기 화성시, 봉담읍
  • 용도

    주거 시설
  • 외부마감재

    모르타르 스탬프, 아연도 골강판, 내후성 강판
  • 내부마감재

    모르타르 스탬프, 콘크리트 폴리싱, 스테인리스, 아연도강판, 합판, 적삼목
  • 구조

    철근 콘크리트, 철골조
  • 대지면적

    13,150㎡
  • 완공연도

    2025
  • 건축면적

    6,225㎡
  • 연면적

    7,613㎡
  • 디자이너

    최재영
  • 건폐율

    47.33%
  • 용적률

    56.86%







Site Plan


Elevation


Elevation


Elevation


박봉담은 옛 양조장을 재생한 복합문화공간이다. 우리는 이 프로젝트를 단순한 리노베이션이 아닌, ‘재생건축(Regeneration)’으로 접근했다.

출발점은 모회사 국순당이 오랫동안 지켜온 철학, ‘법고창신(法古創新)’이었다. 과거를 덮거나 복원하는 대신, 시간의 기억과 흔적을 고스란히 드러내는 방식을 택했다.

축적된 시간에 대한 존중과 함께, 앞으로 이곳에 스며들 새로운 삶과 관계들이 건축 속에 자연스럽게 자리 잡기를 바랐다. ‘오래된 공원, 오래될 공원’이라는 주제는 서울 효창공원에서 받은 인상에서 비롯됐다.









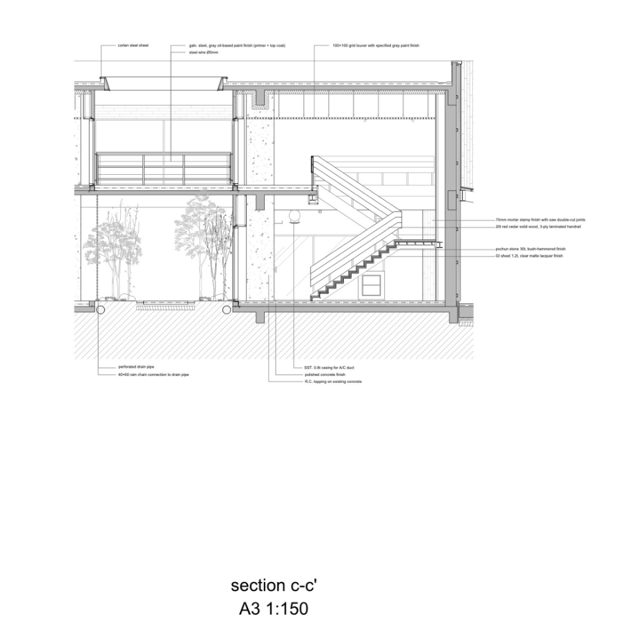
Section


Section


Section


풍화된 콘크리트 표면에 드러난 종석, 수십 년을 자란 나무들이 만든 깊은 음영, 그리고 유기적이고 선형적으로 연결된 산책로. 이러한 장면들을 박봉담이라는 장소와 건축 언어로 번역하고자 했다.

'박봉담'이라는 이름 또한 '봉담공원(Bongdam Park)'을 비틀어 만든 것으로, 사람들이 모이고 머무르며 관계를 맺는 진정한 의미의 공원을 지향한다.









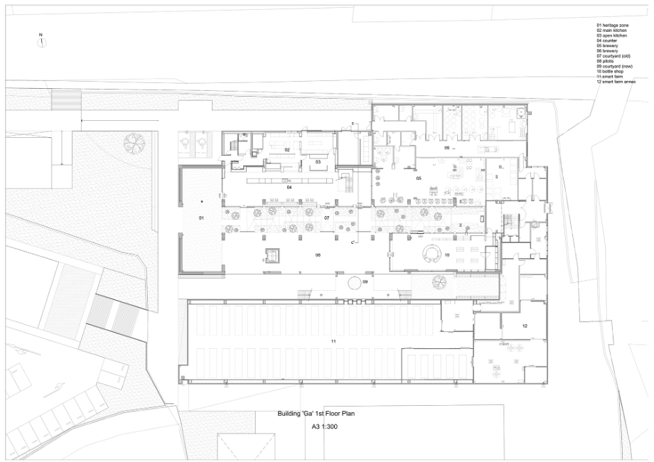
Plan_1F


박봉담은 폐공장을 공원으로 다시 짓는 실험이자 선언이다. 물리적 재생을 넘어, 기억과 흔적을 비물리적으로 복원한 건축이다.

이는 단순히 새로 지은 건축이 아니라, 과거의 층위 위에 시간과 경험을 덧댄 또 하나의 축적이며, 현재와 미래가 지속적으로 개입할 수 있는 여지를 남겨두는 구조다.







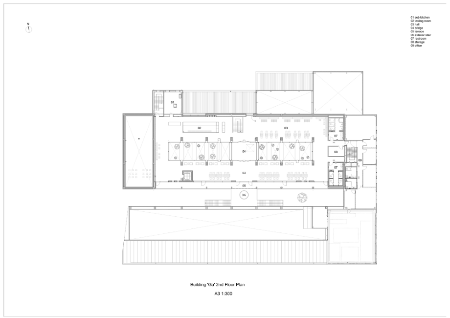
Plan_2F


‘오래된 공원, 오래될 공원’이라는 개념처럼, 박봉담이 과거와 현재 그리고 미래의 시간이 켜켜이 쌓이는 장소가 되기를 바란다. 이곳을 찾는 이들의 기억과 삶이 이 건축에 머무르고 흐를 수 있기를 기대한다.◼︎






프로젝트 이미지 모음
프로젝트 이미지 모음
프로젝트 이미지 모음
프로젝트 이미지 모음
프로젝트 이미지 모음
프로젝트 이미지 모음
프로젝트 이미지 모음
프로젝트 이미지 모음